







_TEAM-CRIMS-FRGL-JPEG-00039-001IMAGE 3
_TEAM-CRIMS-FRGL-JPEG-00040-04 imAge 12
_TEAM-CRIMS-FRGL-JPEG-00041-004 IMAGE 4
_TEAM-CRIMS-FRGL-JPEG-00063-ELEVATION-01
CP AA A3@100
Modenature Briques
Parti pris maquettes
Plan de masse








SIÈGE DU CENTRE RÉGIONAL D’INVESTISSEMENT DE MARRAKECH-SAFI
- Maître d’Ouvrage : Centre régional d’investissement de Marrakech-Safi
- Programme : Administration, bureaux
- Etat : Concours (2021)
- La surface du plancher : 2200 m2
- Le coût HT des travaux et leur date de valeur : 16 600 000 DHS H.T
- Equipe: Atelier Dahmani Architects + El Moumni Architects + Frugal Architects + Offset
Brique, Eau, Lumière
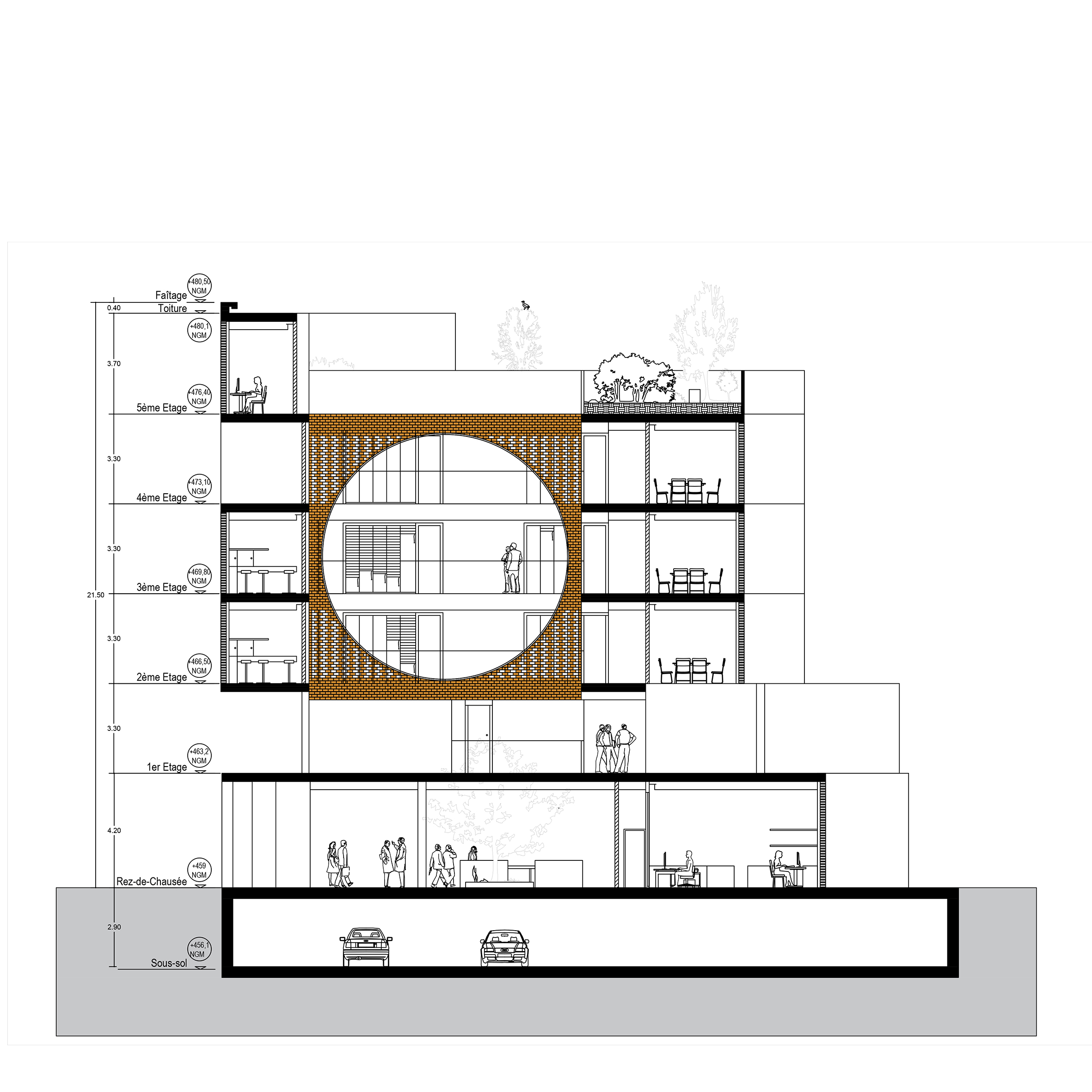
Le projet du Centre Régional d’Investissement de Marrakech-Safi puise son inspiration dans le patrimoine architectural et paysager de la région. La proximité immédiate des jardins de la Menara influence directement la conception d’un bâtiment ancré dans son territoire, où les grands espaces extérieurs et les perspectives dégagées participent à l’identité du site. Visible depuis l’environnement urbain, l’édifice s’impose par sa monumentalité discrète, tirée non de sa hauteur mais de l’intelligence de sa composition spatiale.
Le volume général est pensé comme un dispositif de cadrage, organisant des vues intérieures vers un vaste patio central, tout en maintenant une connexion visuelle permanente avec le paysage de Marrakech. Le patio devient ici le cœur vivant du projet : un vide structurant qui articule les circulations, valorise la lumière naturelle, et crée une respiration au sein de la masse bâtie.
La variation des hauteurs répond aux spécificités programmatiques de chaque entité, offrant des volumes adaptés aux besoins en lumière et en ventilation. Le confort thermique est renforcé par l’usage de la brique massive, matériau local dont l’inertie permet de réguler les écarts de température entre l’été et l’hiver.
Un bassin d’eau prolonge l’esplanade extérieure jusque dans le patio, générant un microclimat doux. Ce dispositif bioclimatique, inspiré des jardins du Palais El Badii, combine l’eau, le végétal et le minéral pour créer une atmosphère rafraîchissante et sensorielle, favorable au bien-être des usagers.
Le traitement paysager complète ce dialogue entre architecture et nature, en proposant un cadre harmonieux pour les employés comme pour les visiteurs, où la culture locale, la fonctionnalité et la durabilité s’entrelacent en un tout cohérent.